新闻资讯

NEWS

新闻资讯

永磁断路器的安装、调试以及使用问题

2023-02-02 1247

一.断路器的安装与调试

永磁真空断路器安装

永磁真空断路器安装
1 安装

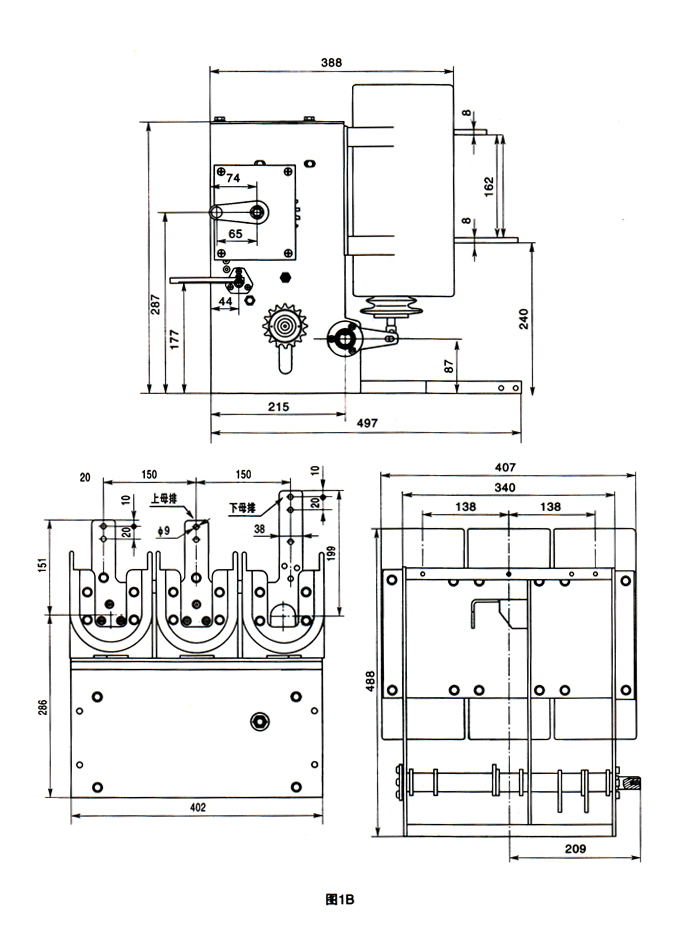
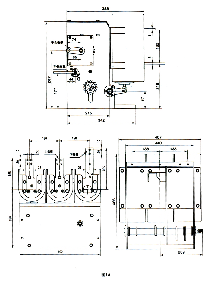
断路器的安装尺寸参见图(1),安装时应符合安装条件,具体固定方法可由用户自行确定,接线图参见图1B。(断路器的安装尺寸可根据用户要求另行设计)
永磁断路器的安装、调试以及使用问题
永磁断路器的安装、调试以及使用问题

2 更换真空灭弧时调整

本断路器所配永磁机构动铁芯行程为确定值,因此触头开距加超行程也为确定值。在调试时首先应将触头弹簧预压缩量和触头超行程确定,如总行程为12mm;超行程为3.5mm,触头开距即为8.5mm.

三极同期性调整*好采用三极毫秒计进行测量,配合绝缘子与动触头的连接上下调整。

二.断路器的使用及注意问题

1 断路器在使用前应进行动作特性试验,用85%的额定控制电压进行合分操作5次应可靠合分,再用110%额定控制电压进行合分操作实验5次应可靠合分。注意!如果试验电压检查断路器特性,试验电压不能超过130V。

2 断路器在使用前应进行外观检查,如紧固件有无松动,开距,超程是否正常,外观有无机械损伤等。

3 由于该产品的特殊性,其控制部分的电器元件在维修时必须采用原生产厂提供的配件。

4 分闸拉簧等可调部件,在出厂前调好不得随意改动,在必须调整时应由经过培训的专家人员进行,切勿随意拆卸,调整。

三.断路器的运行合储存

1 断路器在运行过程中不能受雨雪侵袭,不能倒置。

2 断路器应存放在空气流通,相对湿度不大于90%(温度为25℃),环境温度在-15~+40℃不受雨雪侵袭不含有破坏金属和绝缘材料的腐蚀性气体在仓库中。
联系我们
扫一扫,加我为朋友
© 厦门伊顿森源电气有限公司   闽ICP备20015089号   XML   网站地图   网站制作维护:传信网络